Save
Ask
Tour
Hide
$695,000
2 Days On Site
2517 Belmont StreetNorth Las Vegas, NV 89030
For Sale|Duplex|Active
0
Beds
0
Total Baths
2027
Built
Subdivision:
East Vegas Tr
County:
Clark
Listing courtesy of Virtue Real Estate Group 7028033527
Call Now: 702-553-3109
Is this the listing for you? We can help make it yours.
702-553-3109



Save
Ask
Tour
Hide
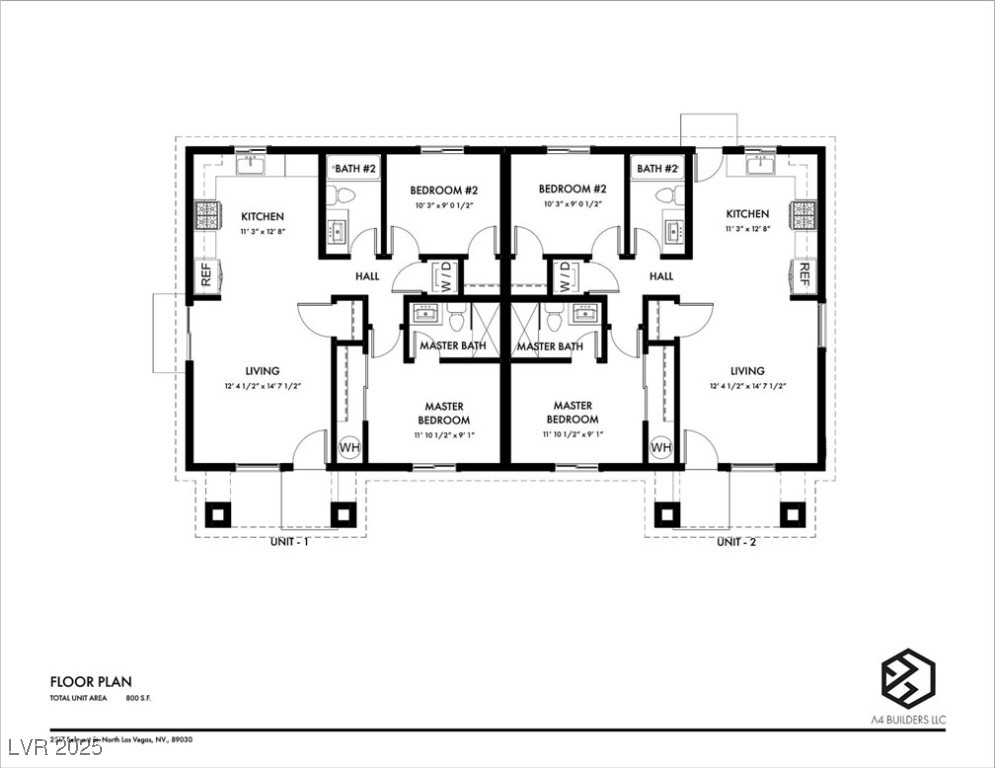
Incredible Investment Opportunity! Buildable lot in a prime North Las Vegas location with approved plans to build a one-level duplex featuring two 2-bed / 2-bath units, approximately 1,000 sq.ft. each. Designed with open-concept living, modern kitchens, stainless steel appliances, white cabinetry, and stylish luxury vinyl flooring throughout. Each unit includes laundry hookups and designated parking. The developer can complete the project within approximately 12 months. Approximate rental information: TBA. Contact the listing agent for plans, renderings, and more information.
Save
Ask
Tour
Hide
Listing Snapshot
Price
$695,000
Days On Site
2 Days
Bedrooms
N/A
Inside Area (SqFt)
N/A
Total Baths
N/A
Full Baths
N/A
Partial Baths
N/A
Lot Size
0.14 Acres
Year Built
2027
MLS® Number
2729965
Status
Active
Property Tax
$266
HOA/Condo/Coop Fees
N/A
Sq Ft Source
N/A
Friends & Family
Recent Activity
| 3 days ago | Listing first seen on site | |
| 3 days ago | Listing updated with changes from the MLS® |
General Features
Acres
0.14
Levels
One
Number Of Stories
1
Property Condition
New Construction
Property Sub Type
Duplex
Sewer
Public Sewer
Style
Duplex
Water Source
Public
Interior Features
Appliances
DishwasherMicrowaveOvenRangeRefrigerator
Cooling
Central Air
Flooring
Other
Furnished
Unfurnished
Heating
Natural GasCentral
Laundry Features
Washer HookupLaundry Room
Window Features
Window CoveringsBlinds
Save
Ask
Tour
Hide
Exterior Features
Construction Details
Stucco
Roof
Tile
Windows/Doors
Window CoveringsBlinds
Community Features
Association Amenities
Landscaping
Financing Terms Available
All Inclusive Trust DeedCashConventionalContractFHAOwner Will CarryVA Loan
Schools
School District
Unknown
Elementary School
,
Middle School
Unknown
High School
Unknown
Listing courtesy of Virtue Real Estate Group 7028033527
Listing information is provided by Participants of the Greater Las Vegas Association of Realtors. IDX information is provided exclusively for personal, non-commercial use, and may not be used for any purpose other than to identify prospective properties consumers may be interested in purchasing. Information is deemed reliable but not guaranteed. Copyright 2025, Greater Las Vegas Association of Realtors.
Last checked: 2025-11-01 02:19 PM UTC
Listing information is provided by Participants of the Greater Las Vegas Association of Realtors. IDX information is provided exclusively for personal, non-commercial use, and may not be used for any purpose other than to identify prospective properties consumers may be interested in purchasing. Information is deemed reliable but not guaranteed. Copyright 2025, Greater Las Vegas Association of Realtors.
Last checked: 2025-11-01 02:19 PM UTC
Neighborhood & Commute
Source: Walkscore
Save
Ask
Tour
Hide

Did you know? You can invite friends and family to your search. They can join your search, rate and discuss listings with you.